5219 Keenes Pheasant Drive, WINDERMERE, FL 34786
- MLS#: O6344226 ( Residential )
- Street Address: 5219 Keenes Pheasant Drive
- Viewed: 6
- Price: $385,000
- Price sqft: $191
- Waterfront: No
- Year Built: 2004
- Bldg sqft: 2012
- Bedrooms: 3
- Total Baths: 3
- Full Baths: 2
- 1/2 Baths: 1
- Garage / Parking Spaces: 2
- Days On Market: 7
- Additional Information
- Geolocation: 28.4888 / -81.5993
- County: ORANGE
- City: WINDERMERE
- Zipcode: 34786
- Subdivision: Summerport Ph 04 C E F G
- Elementary School: Keene Crossing Elementary
- Middle School: Bridgewater Middle
- High School: Windermere High School
- Provided by: THE SIMON SIMAAN GROUP
- Contact: Roland Cotardo
- 407-558-1396
- DMCA Notice
-
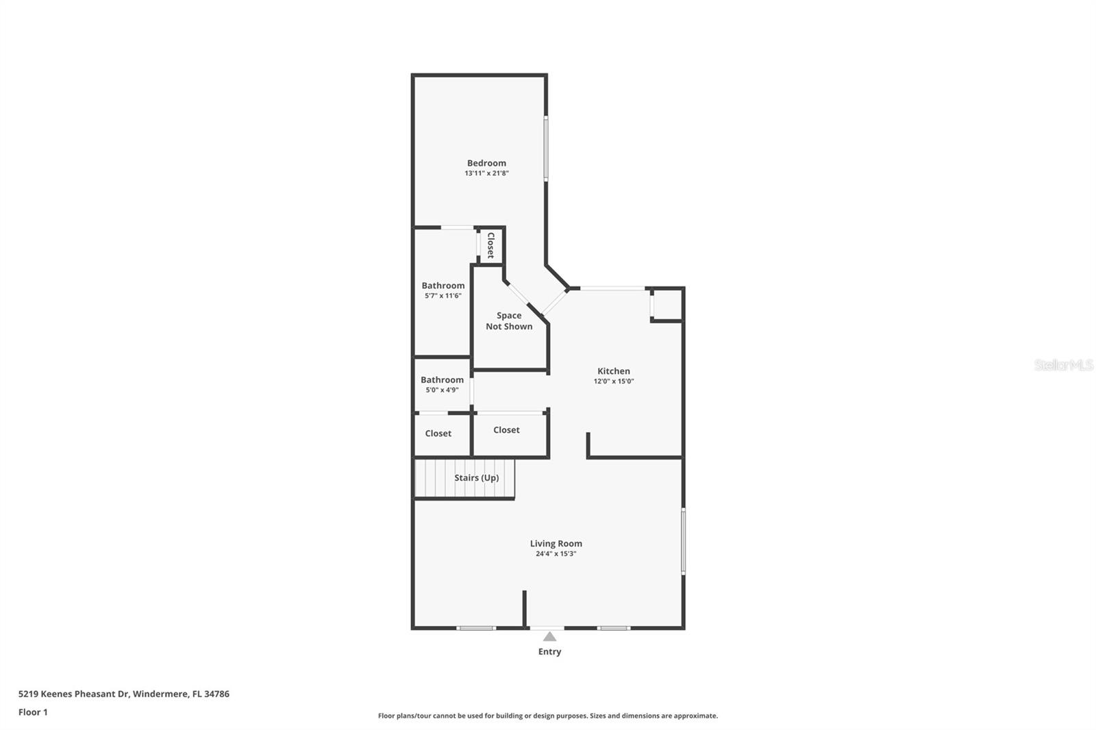
DescriptionBeautifully Maintained 3 Bedroom Townhome in Sought After Summerport! Dont miss this spacious and move in ready townhouse located in the heart of Summerport, one of the areas most desirable communities. This light filled home features 3 bedrooms, 2.5 bathrooms, and an open floor plan perfect for modern living. The primary suite is conveniently located on the first floor and includes a spacious en suite bathroomideal for comfort and privacy. The large kitchen boasts elegant quartz countertops, ample cabinet space, and flows seamlessly into the dining and living areas, creating a welcoming space for entertaining. Upstairs, you'll find two generously sized bedrooms, a full bathroom, and a laundry closet for added convenience. Recent updates include new flooring throughout, a brand new A/C system (2025), and a roof replacement in 2018with future roof replacements handled by the HOA every 10 years. Located close to top rated schools, parks, shopping, and dining, this townhome offers the perfect blend of location, comfort, and low maintenance living. The community features a pool, tennis courts, a dog park, pickle ball, fitness center and more. Be sure to click on the virtual tour links. Schedule a showing now!
Property Location and Similar Properties
Features
Building and Construction
- Covered Spaces: 0.00
- Exterior Features: Courtyard
- Flooring: Tile, Vinyl
- Living Area: 1461.00
- Roof: Shingle
School Information
- High School: Windermere High School
- Middle School: Bridgewater Middle
- School Elementary: Keene Crossing Elementary
Garage and Parking
- Garage Spaces: 2.00
- Open Parking Spaces: 0.00
Eco-Communities
- Water Source: None
Utilities
- Carport Spaces: 0.00
- Cooling: Central Air
- Heating: Central, Electric, Heat Pump
- Pets Allowed: Yes
- Sewer: Public Sewer
- Utilities: Cable Connected, Electricity Connected, Sewer Connected, Water Connected
Finance and Tax Information
- Home Owners Association Fee Includes: Pool, Maintenance Structure, Maintenance Grounds, Recreational Facilities
- Home Owners Association Fee: 203.81
- Insurance Expense: 0.00
- Net Operating Income: 0.00
- Other Expense: 0.00
- Tax Year: 2024
Other Features
- Appliances: Dishwasher, Disposal, Dryer, Electric Water Heater, Microwave, Range, Refrigerator, Washer
- Association Name: Rubin Brown
- Association Phone: 407-656-6501
- Country: US
- Interior Features: Ceiling Fans(s), Open Floorplan, Primary Bedroom Main Floor, Walk-In Closet(s)
- Legal Description: SUMMERPORT PHASE 4 55/26 LOT 17
- Levels: Two
- Area Major: 34786 - Windermere
- Occupant Type: Vacant
- Parcel Number: 15-23-27-8391-00-170
- Zoning Code: P-D
Payment Calculator
- Principal & Interest -
- Property Tax $
- Home Insurance $
- HOA Fees $
- Monthly -
For a Fast & FREE Mortgage Pre-Approval
Apply Now

Nearby Subdivisions
Ashlin Park Ph 2
Lake Burden South Ph 2 #35 36
Lake Burden South Ph 2 35 36
Lake Sawyer South Ph 03
Lake Sawyer South Ph 3
Lakeside Villas
Lakeswindermerelk Reams Twhm
Lakeswindermerelk Reams Twnh
Legado
Summerport
Summerport Ph 04 C E F G
Summerport Ph 04 C E F & G
Townhomes Of Lake Reams
Vineyardshorizons West Ph 4
Wickham Park
Wickham Park 04 05 06 09 10 11
Windermere Sound Ph 2
Windermere Trls Prcl 3
Similar Properties