13182 Camelot Lane, PUNTA GORDA, FL 33955
- MLS#: TB8425297 ( Residential )
- Street Address: 13182 Camelot Lane
- Viewed: 54
- Price: $565,900
- Price sqft: $191
- Waterfront: No
- Year Built: 2025
- Bldg sqft: 2958
- Bedrooms: 4
- Total Baths: 3
- Full Baths: 3
- Garage / Parking Spaces: 2
- Days On Market: 55
- Additional Information
- Geolocation: 26.8421 / -82.0084
- County: CHARLOTTE
- City: PUNTA GORDA
- Zipcode: 33955
- Subdivision: Turnleaf
- Provided by: PERRY HOMES
- Contact: Toby Jones
- 800-247-3779

- DMCA Notice
-
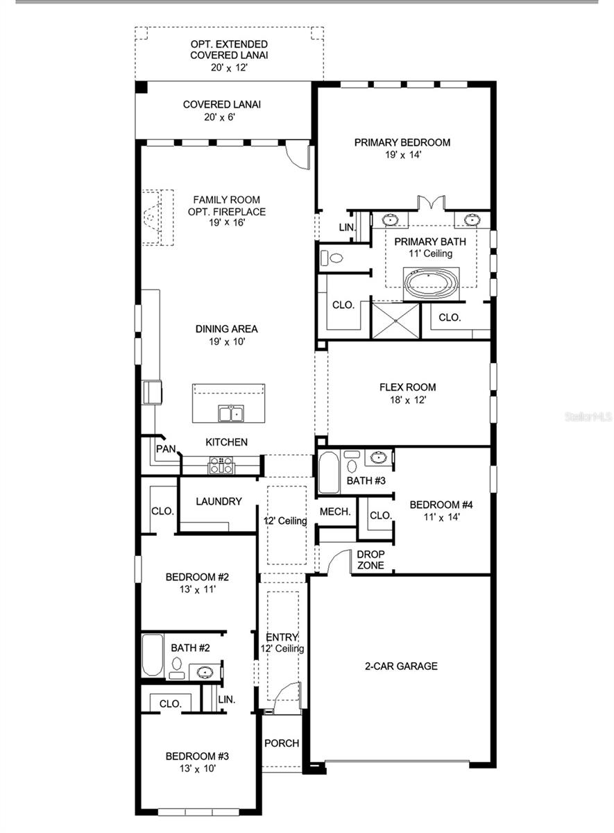
DescriptionUnder Construction. The front porch opens into a welcoming entryway with an extended tray ceiling that embraces the main hallway. Two secondary bedrooms with walk in closets and full bathroom are off the main hall. A full guest suite with a private bathroom and ample closet space is adjacent. You pass the laundry room as you enter into the kitchen which features an island with built in seating and corner pantry. A bonus flex room is across from the kitchen. The dining area flows from the kitchen to the connecting family room which offers abundance of natural light from its wall of windows and access to the backyard covered lanai. The primary bedroom has a wall of windows overlooking the backyard. Double doors lead into the bathroom which hosts dual vanities, a freestanding tub, glass enclosed shower and two walk in closets. The drop zone is off the two car garage.
Property Location and Similar Properties
Features
Building and Construction
- Builder Model: Perry Homes
- Builder Name: Perry Homes
- Covered Spaces: 0.00
- Exterior Features: Other
- Flooring: Carpet, Tile
- Living Area: 2517.00
- Roof: Shingle
Property Information
- Property Condition: Under Construction
Land Information
- Lot Features: Cleared, Landscaped, Level, Paved
Garage and Parking
- Garage Spaces: 2.00
- Open Parking Spaces: 0.00
- Parking Features: Driveway
Eco-Communities
- Water Source: Public
Utilities
- Carport Spaces: 0.00
- Cooling: Central Air
- Heating: Central
- Pets Allowed: Yes
- Sewer: Public Sewer
- Utilities: Electricity Connected, Sewer Connected, Water Connected
Finance and Tax Information
- Home Owners Association Fee: 274.02
- Insurance Expense: 0.00
- Net Operating Income: 0.00
- Other Expense: 0.00
- Tax Year: 2025
Other Features
- Appliances: Convection Oven, Cooktop, Dishwasher, Disposal, Microwave
- Association Name: FirstService Residential Florida
- Country: US
- Interior Features: Ceiling Fans(s), High Ceilings, Kitchen/Family Room Combo, Open Floorplan, Smart Home, Stone Counters, Thermostat, Tray Ceiling(s), Walk-In Closet(s)
- Legal Description: TURNLEAF PHASE 1 LOT 42 3482807 CND3482806
- Levels: One
- Area Major: 33955 - Punta Gorda
- Occupant Type: Owner
- Parcel Number: TLF00100000046
- Style: Coastal, Contemporary
- Views: 54
Payment Calculator
- Principal & Interest -
- Property Tax $
- Home Insurance $
- HOA Fees $
- Monthly -
For a Fast & FREE Mortgage Pre-Approval
Apply Now
Apply NowNearby Subdivisions
Admirals Point
Admiralty Village
Burnt Store Colony
Burnt Store Isles
Burnt Store Lakes
Burnt Store Marina
Burnt Store Meadows
Burnt Store Village
Capstan Condo
Cobia Cay Estates
Commodore Club
Coral Lakes Coral Creek
Courtside Landings
Courtside Landings Land Condo
Courtyard Landings
Courtyard Landings 01
Courtyard Landings 2
Courtyard Lndgs Ii Condo
Courtyard Lndgs Iii Condo
Dolphin Cove
Egret Pointe Condo
Emerald Isle
Esplanade
Esplanade At Starling
Estates At
Estates At Cobia Cay
Grande Isle I
Grande Isle Ii
Grande Isle Iii
Grande Isle Iv
Halyard Club Condo
Harbor Towers
Heritage Landing
Heritage Landing Golf Country
Heritage Landing Golf & Countr
Heritage Landing Golf And Coun
Heritage Lndg Iib
Heritage Station
Hibiscus Cove Condo
Hibiscus Cove Land Condo
Keel Club
Keel Club Condo
Marina North Shore
Marina North Shore Condo
Mariners Pass
Mariners Pass Condo
Marlin Run Condo
Marlin Run Condo 02
Marlin Run Condo Ii
Not Applicable
Pirate Harbor
Pirate Harbour
Port Charlotte
Prosperity Point
Punta Corda Isles Sec 18
Punta Gorda
Punta Gorda Acres
Punta Gorda Isle Sec 21
Punta Gorda Isles
Punta Gorda Isles 16
Punta Gorda Isles Sec 16
Punta Gorda Isles Sec 18
Punta Gorda Isles Sec 21
Punta Gorda Isles Sec21
Redfish Cove Condo
Resort At Burnt Store Marina
Rudder Club Condo
S P G Heights 1st Add
S P G Heights 3rd Add
S P G Heights 8th Add
Seminole
Seminole Lakes
Seminole Lakes Ph 01
Seminole Lakes Ph 02
Seminole Lakes Ph 04
Seminole Lakes Ph 2
South Punta Gorda Heights
Spg Heights 1st Add
Sunset Key Land Condo
Tarpon Pass 02 Land Condo
Tarpon Pass Condo
Tarpon Pass Nka King Tarpon La
Tern Bay Golf Cc Residence Ph
Topaz Cove Condo
Trop G A
Trop G A 7
Tropical Gulf Acres
Turnleaf
Turnleaf In Punta Gorda
Villas At Cobia Cay Condo
Willow At Punta Gorda
Woodland Estates
Yellowfin Cove Condo
Similar Properties












