6002 Country Club Drive, LAKE WALES, FL 33898
- MLS#: P4936412 ( Residential )
- Street Address: 6002 Country Club Drive
- Viewed: 166
- Price: $319,900
- Price sqft: $100
- Waterfront: No
- Year Built: 1983
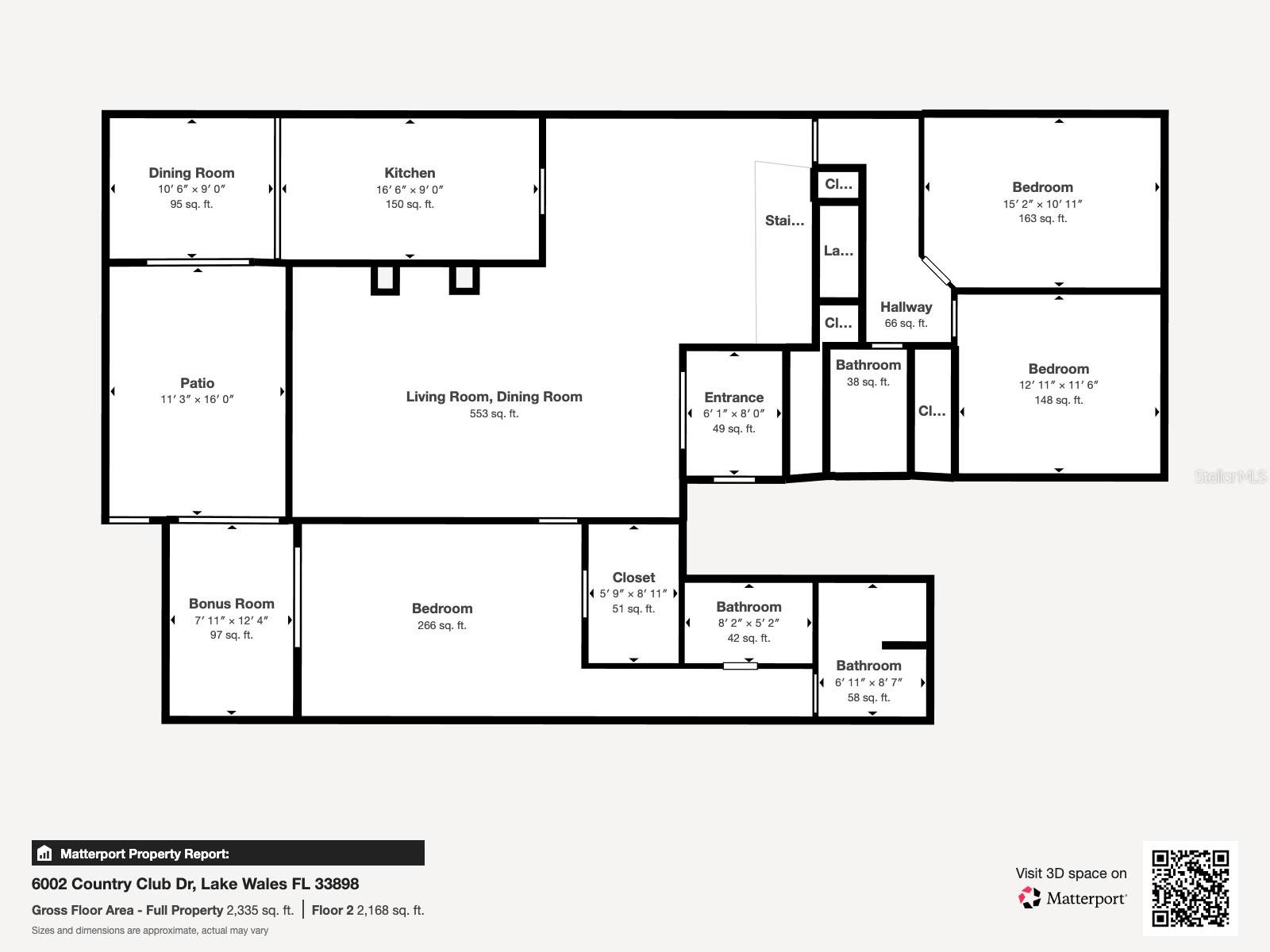
- Bldg sqft: 3209
- Bedrooms: 3
- Total Baths: 3
- Full Baths: 3
- Garage / Parking Spaces: 2
- Days On Market: 171
- Additional Information
- Geolocation: 27.8963 / -81.5394
- County: POLK
- City: LAKE WALES
- Zipcode: 33898
- Subdivision: Country Club Village Condo
- Provided by: KELLER WILLIAMS REALTY SMART 1
- Contact: Laurie Creel
- 863-508-3000

- DMCA Notice
-
DescriptionSweeping golf course views from this elevated home at 6002 Country Club. If youve been watching this one, take another look after the recent price adjustment. "Completely Furnished Turnkey. A beautifully updated, furnished 3 bedroom, 3 bath golf course home located on the 9th fairway/green with stunning views of course from kitchen, living room, and bedroom, in the desirable Lake Wales Country Club community. Designed for comfort and style, this home offers a perfect blend of elegance and Florida resort living. This home will come furnished, minus a few special sentimental pieces. Property Highlights: Updated kitchen & bathrooms with modern finishes. New appliances (2023) Freshly painted exterior (2023) Cozy gas fireplace for added charm Spacious 2 car garage with epoxy flooring Separate office space in garage. Tons of storage space. Work table with pegboard for tools. New Electric chair lift for ease of access Weber Gas Grill with cover Golf cart, negotiable. Community Lifestyle: Sparkling resort style pool Extra refrigerator in garage for your convenience. Relaxing hot tub Clubhouse, restrooms and shower Prime Location: Enjoy the tranquility of Lake Wales while staying close to shopping, dining, healthcare, and world class attractions like Disney, Legoland, and Floridas east & west coast beaches. Move in ready with luxury updates, this home offers the lifestyle youve been waiting for. Call, text, or message today for your private showing!
Property Location and Similar Properties
Features
Building and Construction
- Covered Spaces: 0.00
- Exterior Features: Balcony, Sliding Doors
- Flooring: Carpet, Laminate
- Living Area: 2372.00
- Roof: Tile
Garage and Parking
- Garage Spaces: 2.00
- Open Parking Spaces: 0.00
- Parking Features: Garage Door Opener, Ground Level
Eco-Communities
- Pool Features: In Ground
- Water Source: Public
Utilities
- Carport Spaces: 0.00
- Cooling: Central Air
- Heating: Central
- Pets Allowed: Breed Restrictions, Cats OK, Dogs OK, Number Limit
- Sewer: Private Sewer
- Utilities: Electricity Connected, Public, Sewer Connected, Underground Utilities, Water Connected
Amenities
- Association Amenities: Clubhouse, Golf Course, Pool
Finance and Tax Information
- Home Owners Association Fee Includes: Common Area Taxes, Pool, Maintenance Grounds, Maintenance
- Home Owners Association Fee: 480.00
- Insurance Expense: 0.00
- Net Operating Income: 0.00
- Other Expense: 0.00
- Tax Year: 2024
Other Features
- Accessibility Features: Stair Lift
- Appliances: Dishwasher, Disposal, Dryer, Ice Maker, Microwave, Range, Refrigerator, Washer
- Association Name: Don Asher
- Association Phone: 407-425-4561
- Country: US
- Interior Features: Ceiling Fans(s), Eat-in Kitchen, High Ceilings, Primary Bedroom Main Floor, Stone Counters, Walk-In Closet(s), Window Treatments
- Legal Description: COUNTRY CLUB VILLAGE CONDOMINIUM COND BK 6 PG 18 OR BK 2103 PGS 1839 THRU 1886 VILLA LOT 2 & A UNDIVIDED INTEREST IN THE COMMON ELEMENTS AS PER CONDO DECLARATION
- Levels: Two
- Area Major: 33898 - Lake Wales
- Occupant Type: Owner
- Parcel Number: 28-30-05-939211-000020
- Style: Mediterranean
- View: Golf Course
- Views: 166
Payment Calculator
- Principal & Interest -
- Property Tax $
- Home Insurance $
- HOA Fees $
- Monthly -
For a Fast & FREE Mortgage Pre-Approval
Apply Now
Apply NowNearby Subdivisions
Beg Nw Cor Of U S Govt Lot 1 R
Brookshire
Cherry Pocket
Country Club Village Condo
Country Club Village Ph 02
Country Club Village Ph 03
Country Club Village Ph 3
Country Oaks Estates
Craig W J Resub
East Park Heights
East Park Heights Add
Goldenbough T A Yarnell
Golf View Park
Golf View Park Resub
Hickory Ridge Estates
Highland Park Manor 04
Highland Park Sub
Howey W J Land Starr Lake
Lake Pierce Heights
Lake Pierce Heights Resub Pt
Lake Pierce Retreats
Lake Pierce Vistas
Lakeshore Club
Leighton Lndg
Mabel Place
Mammoth Grove
Mammoth Grove Sec 31
Massicotte
Massicotte Sub
Mohawk Groves
Moneytree Ranchettes Sub
None
Oakwood Golf Club
Oakwood Golf Club Ph 02
Oakwood Golf Club Ph 2
Orange Park
Palm Acres
Palm Acres Sub
Pleasant Acres Un 4
Plesant Acres
Revised Hesperides Sub
River Ranch Shores
Saddlebag
Saddlebag Lake
Seasons At Mabel Place
South Shore Oaks Rep
Tiger Creek
Tiger Creek Forest Add
Tiger Creek Sub
Tigerwood
Timberlake Sub
Timberlane Sub
Tiotie Beach Estates
Walk In Water Lake Estates Ph
Walkinwater Lake Estates Ph 1
West Indian Lake Heights
West Indian Lake Heights Sub
Woodland Hills
Woodland Park









































































