9125 28th Terrace, OCALA, FL 34476
- MLS#: OM714016 ( Residential )
- Street Address: 9125 28th Terrace
- Viewed: 70
- Price: $96,900
- Price sqft: $59
- Waterfront: No
- Year Built: 1975
- Bldg sqft: 1641
- Bedrooms: 2
- Total Baths: 1
- Full Baths: 1
- Days On Market: 127
- Additional Information
- Geolocation: 29.09 / -82.1713
- County: MARION
- City: OCALA
- Zipcode: 34476
- Subdivision: Southgate Mobile Manor
- Middle School: Horizon Academy/Mar Oaks
- High School: West Port High School
- Provided by: EXP REALTY LLC
- Contact: Kerry Millhiser
- 888-883-8509

- DMCA Notice
-
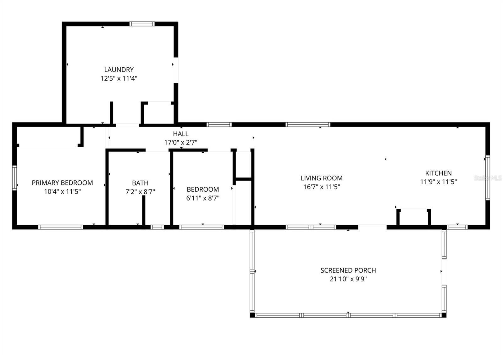
DescriptionThis 2 bedroom, 1 bath Ocala mobile home offers an affordable entry point for buyers and investors alike. Built in 1975, the single wide home features 867 sq ft, including a 195 sq ft utility/laundry room ideal for storage, workshop space, or added functionality. The interior includes a living room open to the kitchen, two bedrooms, and a centrally located bathroom. A large screened porch provides additional usable space and enhances indoor outdoor living. A detached storage shed adds convenience, while the yard offers room for parking, gardening, or light expansion. Located in a convenient Ocala area, this property is well suited for long term rental, seasonal residence, or affordable primary living.
Property Location and Similar Properties
Features
Building and Construction
- Covered Spaces: 0.00
- Exterior Features: None
- Flooring: Vinyl
- Living Area: 867.00
- Other Structures: Shed(s)
- Roof: Other
School Information
- High School: West Port High School
- Middle School: Horizon Academy/Mar Oaks
Garage and Parking
- Garage Spaces: 0.00
- Open Parking Spaces: 0.00
Eco-Communities
- Water Source: Well
Utilities
- Carport Spaces: 0.00
- Cooling: Central Air, Wall/Window Unit(s)
- Heating: None
- Pets Allowed: Yes
- Sewer: Septic Tank
- Utilities: Electricity Connected, Water Connected
Finance and Tax Information
- Home Owners Association Fee: 50.00
- Insurance Expense: 0.00
- Net Operating Income: 0.00
- Other Expense: 0.00
- Tax Year: 2024
Other Features
- Appliances: Range, Refrigerator
- Country: US
- Furnished: Unfurnished
- Interior Features: Ceiling Fans(s)
- Legal Description: SEC 23 TWP 16 RGE 21 PLAT BOOK UNR PAGE 072 SOUTHGATE BLK A LOT 8 BEING MORE FULLY DESC AS: COM AT THE NW COR OF NW 1/4 OF NE 1/4 TH E ALONG THE N BDY OF SAID NW 1/4 OF NE 1/4 1868.70 FT TH S 583.74 FT TO THE POB FROM THE POB TH CONT S 76.94 FT TO AN INTERSECTION WITH THE S BDY OF THE NW 1/4 OF NE 1/4 OF NE 1/4 TH S 89-58-54 E ALONG SAID S BDY 112.07 FT TO THE SE COR THEREOF TH N 00-11-20 W ALONG THE E BDY OF SAID NW 1/4 OF NE 1/4 OF NE 1/4 77 FT TH DEPARTING FROM SAID E BDY W 111.83 FT TO THE P OB
- Levels: One
- Area Major: 34476 - Ocala
- Occupant Type: Vacant
- Parcel Number: 3574-001-008
- Views: 70
- Zoning Code: R4
Payment Calculator
- Principal & Interest -
- Property Tax $
- Home Insurance $
- HOA Fees $
- Monthly -
For a Fast & FREE Mortgage Pre-Approval
Apply Now
Apply NowSimilar Properties






















