1816 Mill Run Circle, TAMPA, FL 33613
- MLS#: TB8435247 ( Residential Lease )
- Street Address: 1816 Mill Run Circle
- Viewed: 10
- Price: $2,100
- Price sqft: $2
- Waterfront: No
- Year Built: 1983
- Bldg sqft: 1261
- Bedrooms: 2
- Total Baths: 3
- Full Baths: 2
- 1/2 Baths: 1
- Days On Market: 6
- Additional Information
- Geolocation: 28.0704 / -82.4772
- County: HILLSBOROUGH
- City: TAMPA
- Zipcode: 33613
- Subdivision: Fletchers Mill
- Provided by: COLDWELL BANKER REALTY
- Contact: Laura Baker
- 813-253-2444
- DMCA Notice
-
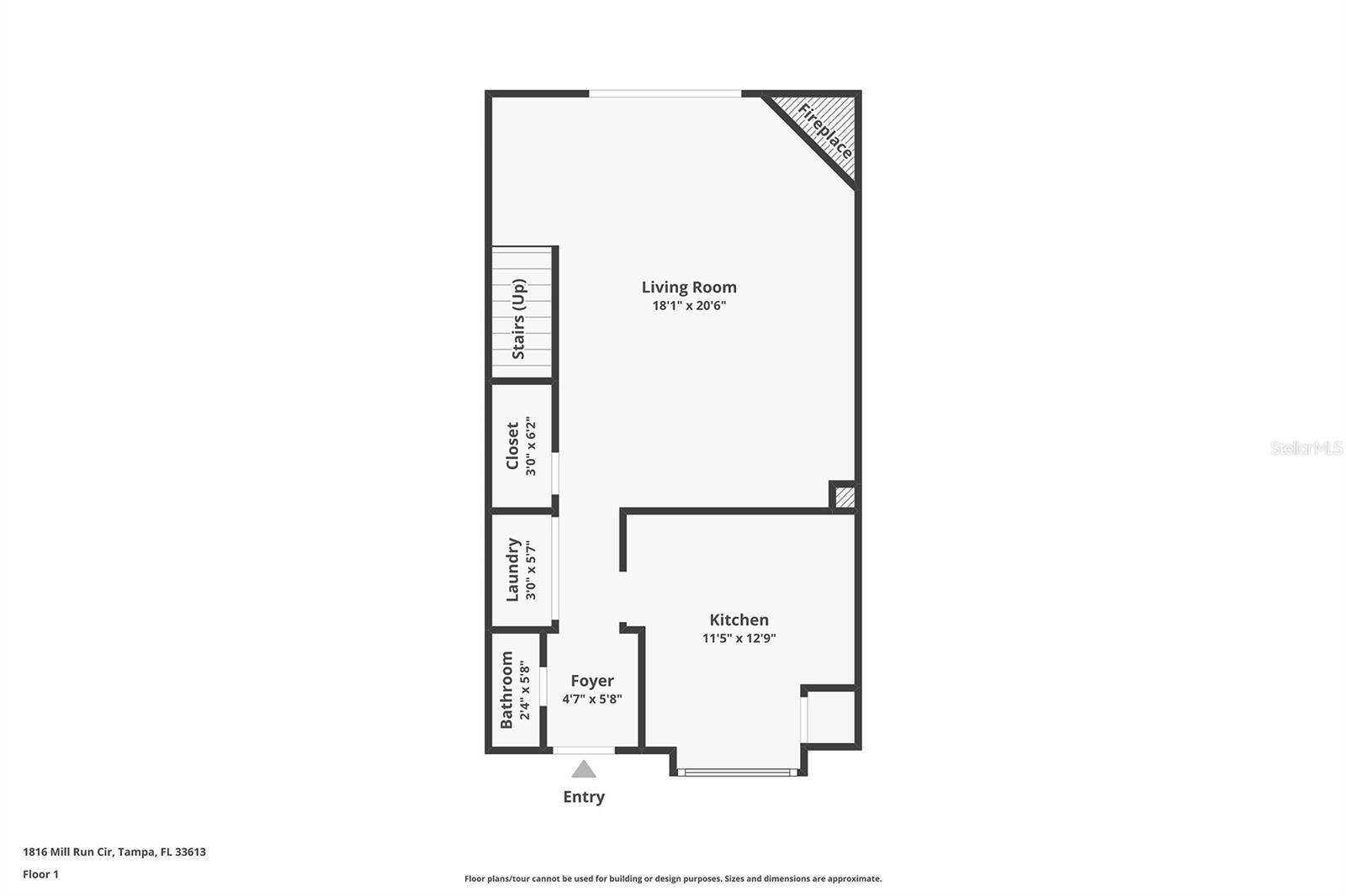
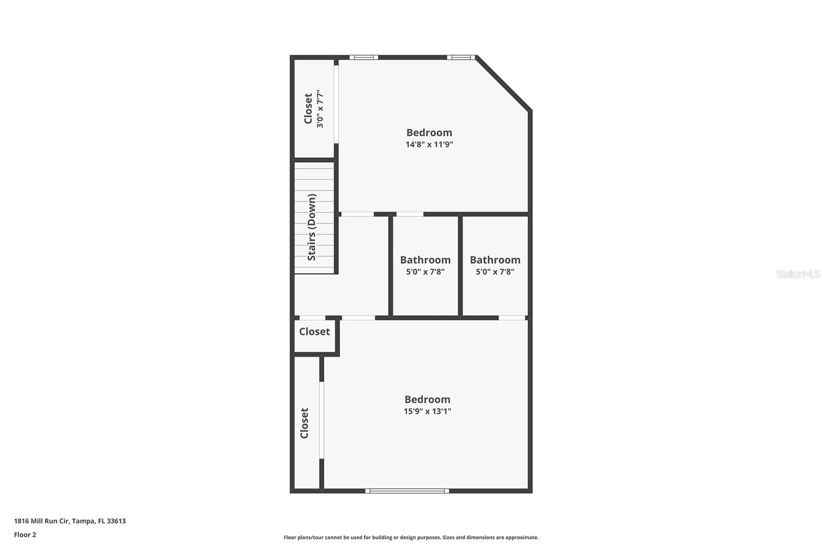
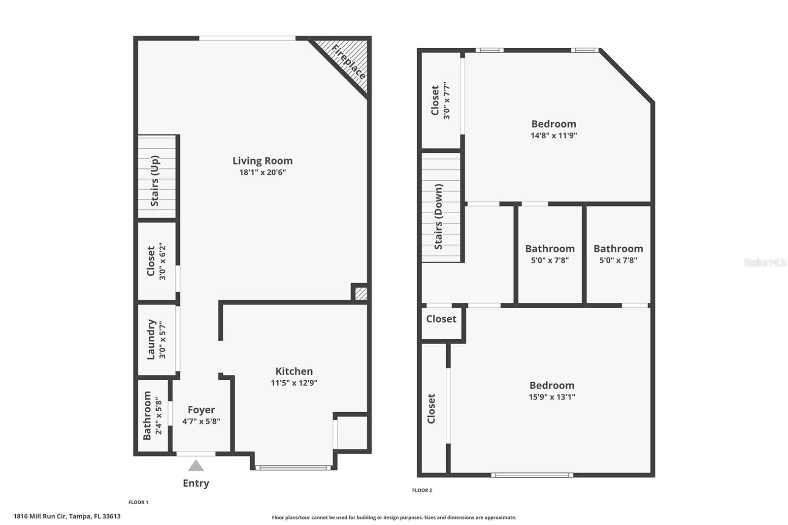
DescriptionAwesome largest 2/2 1/2 plan available in fletchers mill townhomes no carpet or tile anywhere in the unit!! This unit is immaculate & has its own fenced back yard!! Featuring gorgeous new luxury vinyl flooring throughout in (2025)!! New wood staircase in (2025), new 5 1/4" baseboards throughout in (2025), new interior paint including walls, trim & ceilings throughout in (2025), new a/c installed in (2024), new pedestal sink & faucet in downstairs 1/2 bath in (2025), updated cabinets in kitchen in (2025), new stove in (2025), new floors and paint of exterior storage closet in (2025), new washer & dryer in (2024), upgraded bathroom vanities & mirrors, removed old soffit lighting in (2025), new pedestal sink in 1/2 bath in (2025), new lighting fixtures in baths (2025), new 2" stringless wood blinds, so much has been recently done to this amazing unit!! Fantastic floorplan with great open kitchen and spacious great room layout with charming wood burning fireplace!! Pretty updated 1/2 bath, laundry closet and walk in under the stair storage downstairs. Light and bright kitchen with solid wood cabinets, granite countertops, deep closet pantry, brand new stove (2025), large open pass through to living & dining areas. Huge great room offers multiple furniture layouts. Stunning wood staircase leads you upstairs to the dual primary suite 2 bedroom layout both featuring large bedrooms, great closets & ensuite baths & ceiling fans!! Lots of natural light!! Pristine with all new flooring, baseboards & paint throughout!! Wonderful outdoor area with spacious backyard, large patio & newly redone storage room!! All located in the fantastic carrollwood area location!! Close to literally everything you need, every kind of shopping you could ever want including easy access to the mall at citrus park & international mall & bay street, all the best grocery stores like publix, whole foods, fresh market, convenient to all the top home improvement stores like lowes and home depot, amazing dining & entertainment choices with immediate access to dale mabry highway off fletcher & super convenient to 2 75 for amazing access to downtown. The community features a beautiful pool & 2 tennis courts & is close to multiple city parks & playgrounds. This townhome has such an amazing location! It all comes down to location, location, location and condition! This townhome has it all for a great value!! All exterior maintenance even water, sewer and trash are included in the rent!!!
Property Location and Similar Properties
Features
Building and Construction
- Covered Spaces: 0.00
- Exterior Features: Courtyard, Dog Run, Sidewalk, Sliding Doors, Storage
- Fencing: Fenced, Back Yard
- Flooring: Luxury Vinyl
- Living Area: 1261.00
- Other Structures: Storage
Property Information
- Property Condition: Completed
Land Information
- Lot Features: Oversized Lot, Sidewalk, Street Dead-End
Garage and Parking
- Garage Spaces: 0.00
- Open Parking Spaces: 0.00
- Parking Features: Open
Eco-Communities
- Green Energy Efficient: HVAC
- Water Source: Private
Utilities
- Carport Spaces: 0.00
- Cooling: Central Air
- Heating: Central, Electric, Heat Pump
- Pets Allowed: Dogs OK, Monthly Pet Fee, Number Limit, Size Limit
- Sewer: Public Sewer
- Utilities: BB/HS Internet Available, Electricity Connected, Sewer Connected, Water Connected
Amenities
- Association Amenities: Pool, Recreation Facilities, Spa/Hot Tub, Tennis Court(s)
Finance and Tax Information
- Home Owners Association Fee: 0.00
- Insurance Expense: 0.00
- Net Operating Income: 0.00
- Other Expense: 0.00
Other Features
- Appliances: Dishwasher, Disposal, Dryer, Electric Water Heater, Range, Range Hood, Refrigerator, Washer
- Association Name: Wise Property Management Ross Corcoran
- Association Phone: 813 968-5665
- Country: US
- Furnished: Unfurnished
- Interior Features: Ceiling Fans(s), Eat-in Kitchen, Kitchen/Family Room Combo, Living Room/Dining Room Combo, Open Floorplan, PrimaryBedroom Upstairs, Solid Surface Counters, Solid Wood Cabinets, Split Bedroom, Stone Counters, Thermostat, Vaulted Ceiling(s), Walk-In Closet(s), Window Treatments
- Levels: Two
- Area Major: 33613 - Tampa
- Occupant Type: Vacant
- Parcel Number: U-02-28-18-0TU-000002-00003.4
- Views: 10
Owner Information
- Owner Pays: Pool Maintenance, Recreational, Sewer, Trash Collection, Water
Payment Calculator
- Principal & Interest -
- Property Tax $
- Home Insurance $
- HOA Fees $
- Monthly -
For a Fast & FREE Mortgage Pre-Approval
Apply Now

Nearby Subdivisions
Ashford Green Condo
Bavarian Village Ph I Condo
Bearss Heights Sub
Byars Revision Of Sunnyland Ac
Fletchers Mill
Hamners W E Pine Vista
Hamners W E Towering Pines
Lakewood Estates
Marigold Gardens
North Oaks Condo Iii
North Oaks Condo Iv
North Oaks Condo Vi Bldg 9
North Oaks Condominium Iii
North Tampa Heights
Oaks
Settlers Pte Sec C D
Somerset Park A Condo
Sweetwater Oaks Ii A Condomini
The Oaks
Unplatted
Similar Properties